SL Vivienda
Descripción
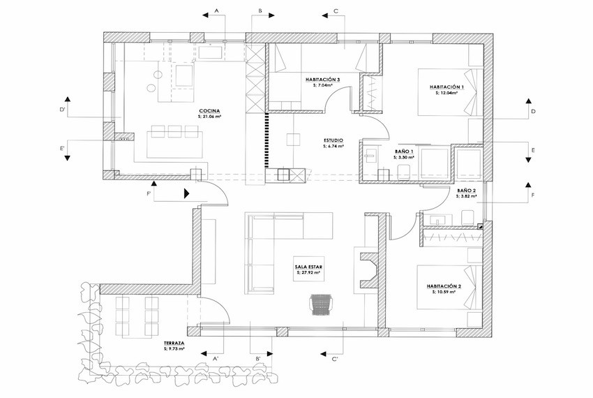
Esta vivienda cuenta con una superficie en planta de 92,90 m2, además de 9,20 m2 de terraza.
Situada en un entorno marino, la vivienda en origen distribuida en nueve espacios, se han reducido a cinco con la nueva propuesta. La transformación nos permite disponer de una zona común diáfana de 56,00 m2 que componen la cocina, el comedor, la zona de estar y el estudio, el resto incorpora tres habitaciones, una de ellas con baño y un baño general.
La luz natural por medio de los amplios vanos existentes, establece el diálogo entre el interior y el exterior de la vivienda donde la nueva zona común se articula a traves de tres elementos, la celosía que privatiza el estudio de la cocina y el comedor, el estudio y la bancada junto al acceso.
La iluminación interior se lleva a cabo a través de proyectores leds, foseados lineales en techo y zonas de luz indirecta situadas en los elementos de mobiliario como bancadas y estanterias.
Los materiales de acabado del nuevo programa son la madera de roble natural combinado con el lacado blanco, gres porcelánico caliza, vidrio laminar con butiral translúcido y encimeras de cocina White Silk de Neolith.
Bakio 2022
Fotografías Jose A. Adánez
